Diözesan-Archiv und Bischöfliches Ordinariat Rottenburg
Diözesan-Archiv und Bischöfliches Ordinariat Rottenburg, 2013







































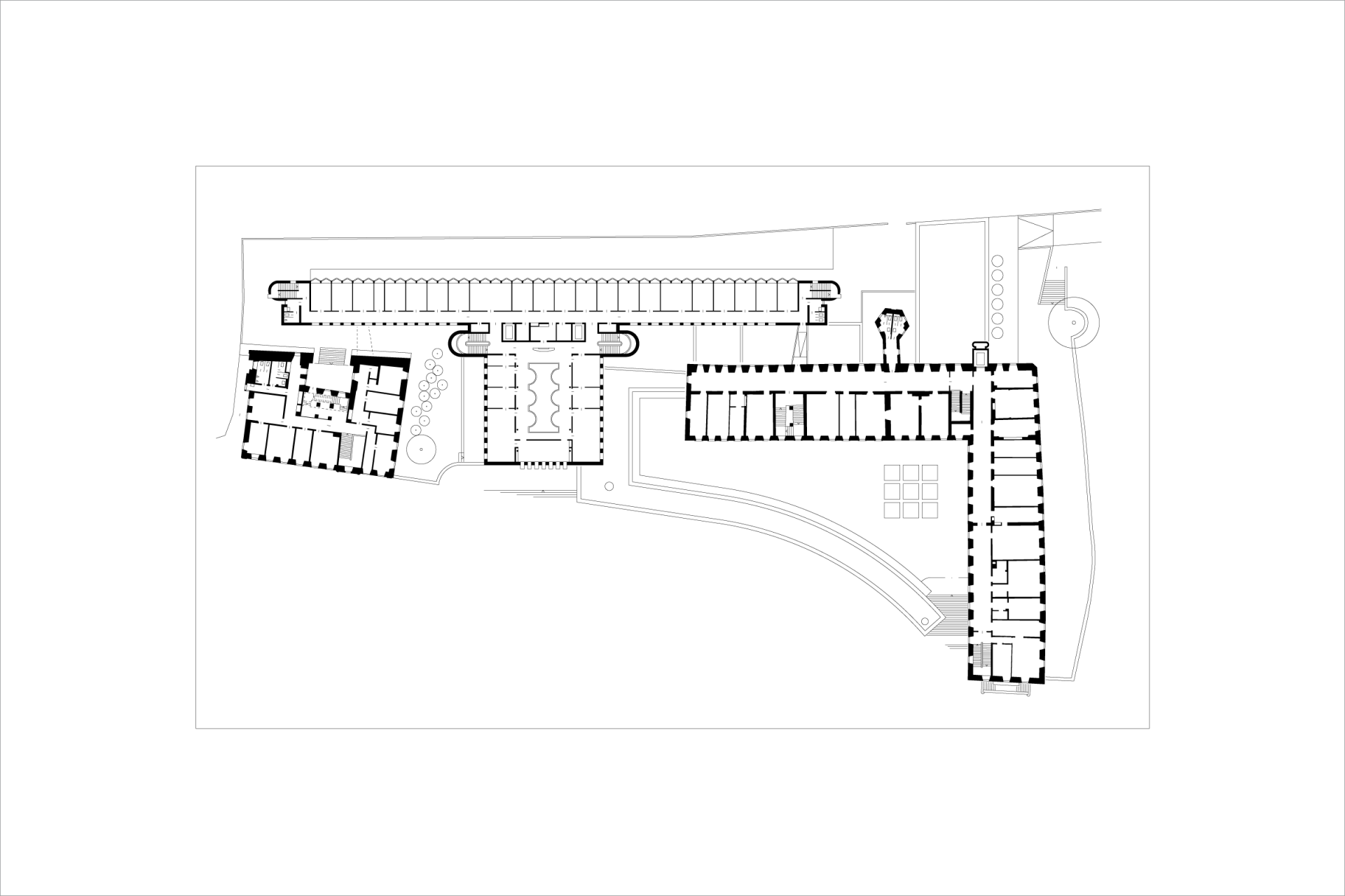
Als Entwurfgrundlage diente uns der barocke Lageplan, in dem die Dominanz des Kirchengrundrisses vorgesehen ist, da so ein Spannungsfeld zur kleinteilig gestalteten Umgebung entsteht. Mit diesem Ansatz begegnen wir dem uneinheitlichen räumlichen Stückwerk, welches der Abriss der Kirche St. Joseph Ende des 18. Jahrhunderts hinterlassen hatte.
Vom neuen Ensemble soll eine ähnliche Klarheit ausgehen, wie wir sie in den Plänen von 1774 und 1659 vorgefunden haben, dazu orientiert sich der zentrale Baukörper mit seinem Volumen an der St. Josephskirche. Seine Südfassade erinnert an die Komposition des plastisch geformten Kirchenbaus. Die große von oben belichtete Halle, die für unterschiedliche Veranstaltungen der Diözese zu nutzen ist, öffnet sich zur Stadt. Sie ist Auftakt und Gelenk, das alle Einrichtungen und Abteilungen der gesamten Anlage miteinander verbindet und kann bei besonderen Anlässen bis in den Hof und den anschließenden Straßen- und Platzraum der Oberen Gasse, erweitert werden.
Zur Nordseite hin verbindet ein langer Büroriegel, im gleichen Abstand wie einst die Stadtmauer sämtliche Baulichkeiten der Gesamtanlage. Das Problem langer Baukörper, der mit der Größe einhergehenden Monotonie, die aufgrund der inneren Bedingungen, im Fall der Büronutzung, mit einem Raster verbunden ist, wird mit einem Rhythmus, welcher die Enden gesondert behandelt und der in Zickzackform entworfenen Fensterbänder gelöst.
Der Platz vor dem Bischöflichen Palais nimmt die ehemalige Raumkante zur Oberen Gasse wieder auf, dadurch wird der bis 1900 vorhandene Straßenraum wieder spürbar und der Gartenhof erhält eine klare räumliche Fassung. Ein zweiter Freibereich zwischen Rohrhalder Hof und dem neuem Eingangsgebäude steht im Sommer der Cafeteria zur Verfügung. Der Dachkörper der zentralen Halle, eine kleine Erinnerung an den barocken Vorgänger, beherbergt die Plansammlung.
Der Umgang mit der Geschichte wird an vielen Stellen deutlich. So auch bei der Wiederherstellung des historischen Eingangsportals des Palais zur Königstraße, durch das Einsetzen der noch erhalten Originaltüren. Bei der Materialwahl wird weitestgehend auf Kunststoffe verzichtet und Wert auf enge Beziehung von Dauerhaftigkeit und Nachhaltigkeit gelegt. Über eine gezielte Materialwahl kann ein wichtiger Beitrag zum Ressourcen schonenden Bauen geleistet werden. Hauptsächlich wurde Beton, Ziegelstein, Holz, Kupfer und Naturstein verwendet. Auch in der vorgehängten Fassade aus Sichtmauerwerk des Neubaus, ist durch beimischen von Altziegeln, wieder einen Verweis auf den geschichtlichen Kontext des Ortes zu erkennen.
Bauherr:
Diözese Rottenburg-Stuttgart, Bischöfliches Ordinat, Rottenburg
Architekten:
LRO Lederer Ragnarsdóttir Oei, Stuttgart
Mitarbeit:
Christian Bollmann, Marc Kager, Moritz Kaiser, Almut Kauderer, Andreas Liebl, Huihui Lü, Johannes Mühlhäuser, Heiko Müller, Max Pampe, Volker Prokhoph, Katja Pütter, Sebastian Rommel, Arno Schone, Matthias Schneider, Daniel Trepte, Mehmet Urkay, Lukas Volz, Christoph Vüllers, Christiane Werling, Jan Wessely. Jie Xing
Projektsteuerung:
WPM Projektmanagement GmbH, Stuttgart
Tragwerksplanung:
Breinlinger Ingenieure, Tuttlingen
HLS Planung:
Ingenieurbüro Grammer, Rottenburg a.N.
Eckert Planungsgesellschaft mbH, Ostheim
BGF:
22.480 qm (Gesamtmaßnahme)
10.190 qm (Altbauten)
12.290 qm (Neubauten)
Wettbewerb:
2002 – 3. Preis
Bauzeit:
2010 – 2013
Standort:
Eugen-Bolz-Platz 1 / Obere Gasse 6 und 8, 72108 Rottenburg
Auszeichnungen
Auszeichnung „Beispielhaftes Bauen Landkreis Tübingen 2011-2017”
Materialpreis 2015
Die Auszeichnung für Material in Anwendung
Kategorie Farbe und Dekor
Hugo-Häring-Landespreis 2015
BDA Landesverband Baden-Württemberg
Hugo-Häring-Auszeichnung 2014
BDA Neckar Alb
Auszeichnung Fritz-Höger-Preis 2014
Winner Silver
Veröffentlichungen
Lederer Ragnarsdóttir Oei 2
Lederer, Arno / Ragnarsdóttir, Jórunn / Oei, Marc (Hg.)
Jovis Verlag Berlin 2021
summa+ No. 166
09 | 2018
Philip Jodidio (Hg):
100 contemporary Brick Buildings, 2017
TASCHEN GmbH 2017
Zweischalige Wand Marketing e.V. (Hg.):
VORTEILE Das Backstein-Magazin, Ausgabe 14, Fritz-Höger Preis für Backsteinarchitektur
02 | 2017
Wüstenrot Stiftung (Hg)
Baukultur in Deutschland – von der Architekturqualität im Alltag zu den Ikonen der Baukunst
Karl-Krämer-Verlag Stuttgart, 2016
Raumprobe OHG (Hg.):
materialPREIS2015 – Die Auszeichnung für Material in Anwendung.
Stuttgart 10 | 2015
Bund Deutscher Architekten BDA, Landesverband Baden-Württemberg (Hg.):
Architektur in Baden-Württemberg 2015.
Hugo-Häring-Auszeichnung. Hugo-Häring Landespreis
Karl-Krämer-Verlag Stuttgart, 2015
ISBN 978-3-7828-4056-9
bba
bau beratung architektur
5 | 2015
Neue Zürcher Zeitung
19.03.2015
Das Münster.
Zeitschrift für christliche Kunst und Kunstwissenschaft.
Verlag Schnell & Steiner, Regensburg
1 | 2015
Kivestä Muuraamalla
1 | 2015
Tübinger Blätter
1 | 2015
Architekturpreis Farbe Struktur Oberfläche.
Deutsche Amphibolin-Werke von Robert Murjahn Stiftung & Co. KG
Gesellschaft für Knowhow-Transfer in Architektur und Bauwesen mbH
Leinfelden-Echterdingen 2014
MEMAR 86
8-9 | 2014
Bauwelt 38.2014
10 | 2014
MARK Another Architecture
10 | 2014
Arquitectura Viva
6 | 2014
Ark. Das Stojournal für Architekten
2 | 2014
Costruire in Laterizio
4 | 2014
bba
bau beratung architektur
10 | 2013
RIBA
10 | 2013
db deutsche bauzeitung
9 | 2013
Frankfurter Allgemeine Zeitung
13.08.2013
md – Interior Design Architecture
6 | 2013
DBZ Deutsche Bauzeitschrift
7 | 2013
wettbewerbe aktuell
7 | 2013
domus
7 | 2013
Schwäbisches Tagblatt
06.06.2013
AIT
5 | 2013
Clemens Stroppel (Hg.):
Vorgestern Gestern Heute für Morgen – Das Bischöfliche Ordinariat Rottenburg.
Geschichte des Bauwerks und seiner Umgebung von den Anfängen zur Gegenwart.
Schwabenverlag Ostfildern 2013
Fotos
Roland Halbe, Stuttgart